Triplex à vendre - Montréal (Le Plateau-Mont-Royal)1 679 000 $
1 679 000 $
Courtier inscripteur : Stéphanie Courtois - Mcgill Immobilier ● # 17107845
3
1
5
1910
Description
Opportunité d'investissement unique, très rare sur le marché! Triplex sur coin, entièrement rénové. Trois logements spacieux : 1x 5 1/2, 1x 4 1/2, et 1x 3 1/2 + den. Idéalement situé en plein coeur du plateau, près de tous les services et à distance de marche de la station de métro Laurier. Excellents revenus!
Détails
- Mode de chauffage
- Plinthes électriques
- Approvisionnement en eau
- Municipalité
- Énergie pour le chauffage
- Électricité
- Fondation
- Pierre
- Proximité
- Garderie/CPE
- Hôpital
- Parc-espace vert
- Piste cyclable
- École primaire
- École secondaire
- Transport en commun
- Université
- Revêtements
- Brique
- Système d'égouts
- Municipal
- Vue
- Sur la montagne
- Zonage
- Résidentiel
- Près de
- Elmire
- Année de construction
- 1910
- Superficie du bâtiment
- 119 mc
- Façade du bâtiment
- 7.62 m
- Profondeur du bâtiment
- 15.64 m
- Nombre d'étages
- 3
- Nombre de pièces
- 5
- Nombre de chambres
- 3
- Nombre de salles de bains
- 1
- Nombre de salles d'eau
- 0
- Nombre d'unités total
- 3
- Type de bâtiment
- En rangée
- Unité :
- 1
- Nombre de stationnements intérieurs
- 0
- Nombre de stationnements extérieurs
- 0
- Nombre de pièces
- 5
- Nombre de chambres
- 3
- Unité :
- 2
- Nombre de stationnements intérieurs
- 0
- Nombre de stationnements extérieurs
- 0
- Nombre de pièces
- 6
- Nombre de chambres
- 2
- Unité :
- 3
- Nombre de stationnements intérieurs
- 0
- Nombre de stationnements extérieurs
- 0
- Nombre de pièces
- 6
- Nombre de chambres
- 1
Type de pièce
Étage
Dimensions
Plancher
Autres détails
- Type de pièce :
- Salon et salle à manger
- Étage :
- 3ième étage
- Dimensions :
- 11.9x19.6 p
- Plancher :
- Bois
- Autres détails :
- Type de pièce :
- Cuisine
- Étage :
- 3ième étage
- Dimensions :
- 11.6x11.6 p
- Plancher :
- Bois
- Autres détails :
- Type de pièce :
- Chambre à coucher principale
- Étage :
- 3ième étage
- Dimensions :
- 9.4x12.4 p
- Plancher :
- Bois
- Autres détails :
- Type de pièce :
- Penderie (Walk-in)
- Étage :
- 3ième étage
- Dimensions :
- 3.4x9.4 p
- Plancher :
- Bois
- Autres détails :
- Attenant à la CCP
- Type de pièce :
- Chambre à coucher
- Étage :
- 3ième étage
- Dimensions :
- 9.3x10.2 p
- Plancher :
- Bois
- Autres détails :
- Type de pièce :
- Chambre à coucher
- Étage :
- 3ième étage
- Dimensions :
- 7.3x13.5 p
- Plancher :
- Bois
- Autres détails :
- Type de pièce :
- Salle de bains
- Étage :
- 3ième étage
- Dimensions :
- 4.11x11.3 p
- Plancher :
- Céramique
- Autres détails :
- Type de pièce :
- Salon et salle à manger
- Étage :
- 2ième étage
- Dimensions :
- 10.8x19.2 p
- Plancher :
- Bois
- Autres détails :
- Type de pièce :
- Cuisine
- Étage :
- 2ième étage
- Dimensions :
- 11.7x11.11 p
- Plancher :
- Bois
- Autres détails :
- Type de pièce :
- Chambre à coucher principale
- Étage :
- 2ième étage
- Dimensions :
- 9.4x19.7 p
- Plancher :
- Bois
- Autres détails :
- Type de pièce :
- Penderie (Walk-in)
- Étage :
- 2ième étage
- Dimensions :
- 3.4x9.4 p
- Plancher :
- Bois
- Autres détails :
- Attenant à la CCP
- Type de pièce :
- Chambre à coucher
- Étage :
- 2ième étage
- Dimensions :
- 9.3x10.2 p
- Plancher :
- Bois
- Autres détails :
- Type de pièce :
- Salle de bains
- Étage :
- 2ième étage
- Dimensions :
- 4.11x11.7 p
- Plancher :
- Céramique
- Autres détails :
- Type de pièce :
- Salon
- Étage :
- 1er niveau/RDC
- Dimensions :
- 11.8x15 p
- Plancher :
- Bois
- Autres détails :
- Type de pièce :
- Bureau à domicile
- Étage :
- 1er niveau/RDC
- Dimensions :
- 8.2x11.9 p
- Plancher :
- Bois
- Autres détails :
- Type de pièce :
- Salle à manger
- Étage :
- 1er niveau/RDC
- Dimensions :
- 11.5x11.9 p
- Plancher :
- Bois
- Autres détails :
- Type de pièce :
- Cuisine
- Étage :
- 1er niveau/RDC
- Dimensions :
- 11.1x11.8 p
- Plancher :
- Bois
- Autres détails :
- Type de pièce :
- Chambre à coucher
- Étage :
- 1er niveau/RDC
- Dimensions :
- 10.10x13.11 p
- Plancher :
- Bois
- Autres détails :
- Type de pièce :
- Salle de bains
- Étage :
- 1er niveau/RDC
- Dimensions :
- 4.11x8.4 p
- Plancher :
- Céramique
- Autres détails :
- Inclusions
- Luminaire de salle à manger, réfrigérateur, cuisinière, lave vaisselle et hotte de cuisson pour les 3 appartements.
- Exclusions
- Tous les biens des locataires.
Évaluations
- Évaluation du bâtiment
- 1 198 600 $
- Évaluation du terrain
- 309 400 $
- Année de l'évaluation
- 2026
- Date de référence (revenu potentiel)
- 2026/02/16
- Garantie légale
- Vente avec exclusion(s) de garantie légale - Voir courtier(s) inscripteur(s)
- Revenu potentiel brut (résidentiel)
- 85 860 $
Dépenses
- Taxes municipales - Dépense générale
- Année:2026
- Montant:9 567 $
- Fréquence:Annuel
- Taxes scolaires - Dépense générale
- Année:2026
- Montant:1 200 $
- Fréquence:Annuel
Addenda
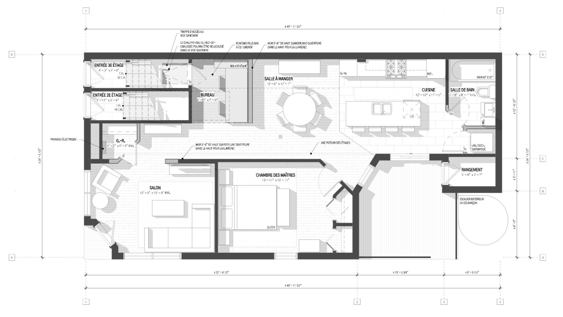
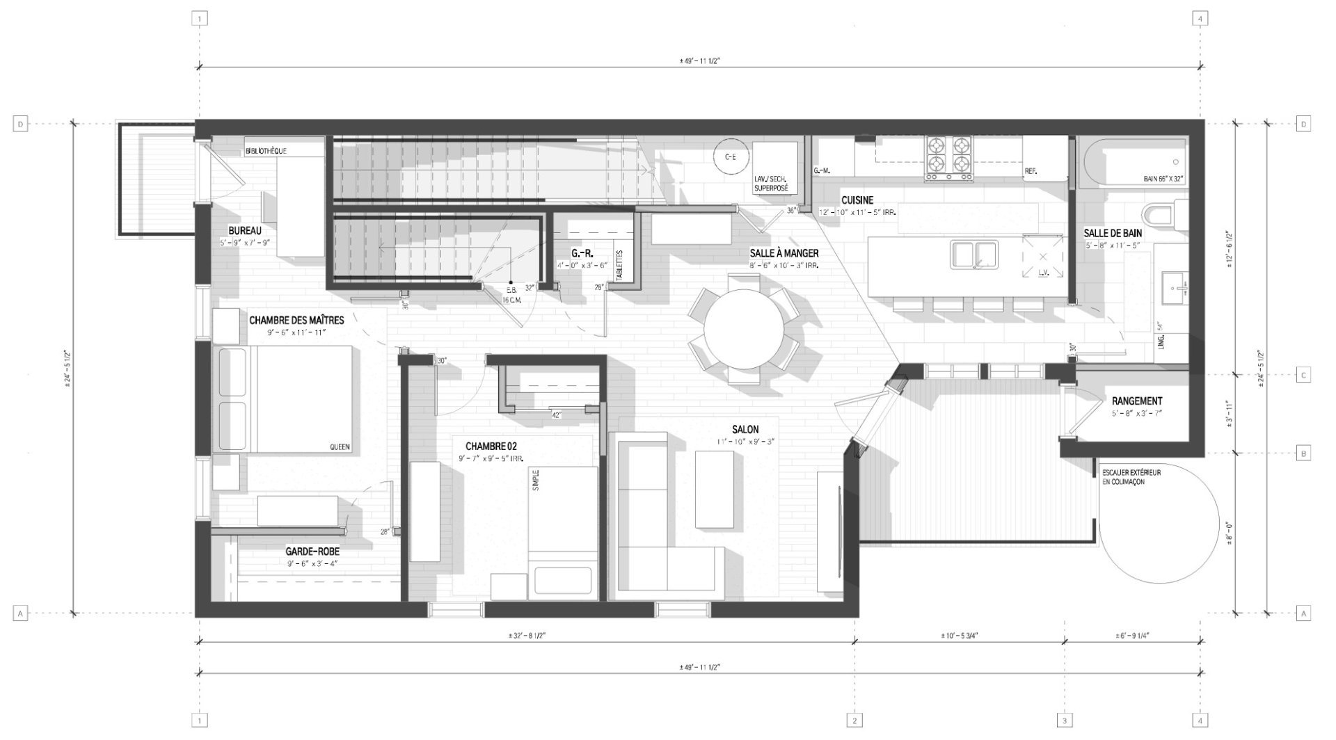
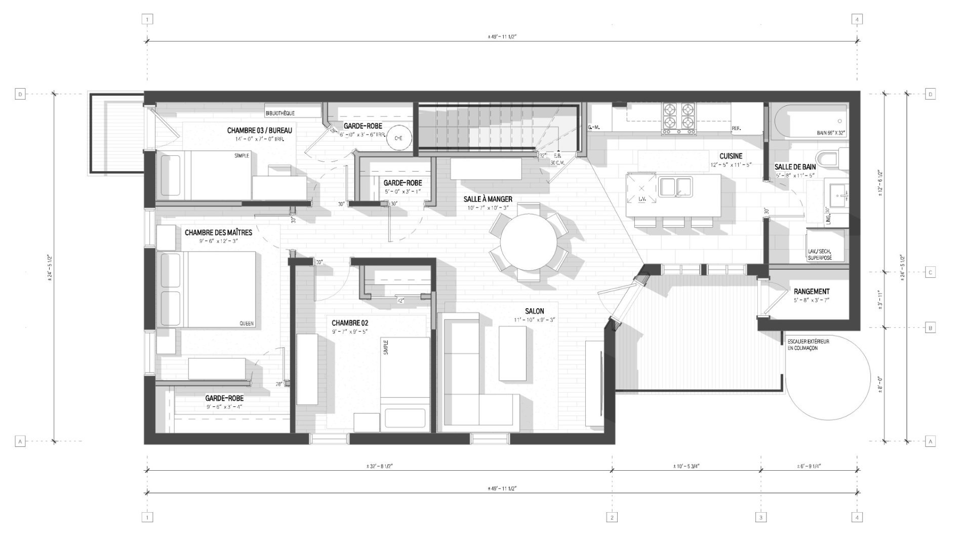
Logement du rez-de-chaussée (4851): 1 chambre + den, 871 pieds carré*
Logement du 2e étage (4853): 2 chambres, 855 pieds carrés*
Logement du 3e étage (4855): 3 chambres, 895 pieds carrés*
*Mesures au certificat de localisation de 2011.
- Entièrement rénové en 2022, suite à un incendie issu de la terrasse qui se trouvait sur le toit. Le tout a été pris en charge par la compagnie d'assurance et les vendeurs ont pu en profiter pour apporter quelques améliorations aux divisions antérieures de l'immeuble.
*Les photos ont été meublées virtuellement
Logement du 2e étage (4853): 2 chambres, 855 pieds carrés*
Logement du 3e étage (4855): 3 chambres, 895 pieds carrés*
*Mesures au certificat de localisation de 2011.
- Entièrement rénové en 2022, suite à un incendie issu de la terrasse qui se trouvait sur le toit. Le tout a été pris en charge par la compagnie d'assurance et les vendeurs ont pu en profiter pour apporter quelques améliorations aux divisions antérieures de l'immeuble.
*Les photos ont été meublées virtuellement
Courtier immobilier
Stéphanie Courtois
Courtier immobilier résidentiel et commercial (E9346)
Agence immobilière :
MCGILL IMMOBILIER INC (E1006)
Boutique immobilière ⬩ SIEGE SOCIAL